
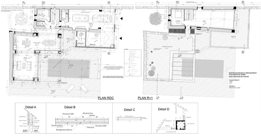
La grange du Monas
Rénovation et extension d’un corps de ferme et de son annexe en maison individuelle valorisant le patrimoine bâti. Création d’une piscine et des plages.
Rénovation
La grange du Monas
Mission complète / Surface habitable : 283 m²
Nous avons fait en sorte de conserver l’emprise existante de l’annexe, dans laquelle nous avons intégré un bassin et ses plages. Nous avons créé différents blocs afin de générer une imbrication en intimisant les espaces, et notamment la piscine. Nous sommes restés austères depuis le domaine public, en respectant le bâti d’origine, et nous nous sommes concentrés sur la partie privative, plus intimiste. Nous avons imaginé le projet avec un jeu de pleins et de vides afin d’ouvrir l’intérieur sur l’extérieur, et « jouer » avec les différents éléments du site, tels que les points de vue sur le centre historique de Rodez.
“Les maîtres d’ouvrage nous ont permis d’imaginer cette maison sur laquelle nous avons pu laisser parler notre créativité, en respectant le site, typique de petits hameaux que nous apprécions.”
Frédéric KierasinskiArchitecte d'intérieur - Créateur du projet
01. PHOTOS AVANT/APRÈS










