Le chantier est en cours.
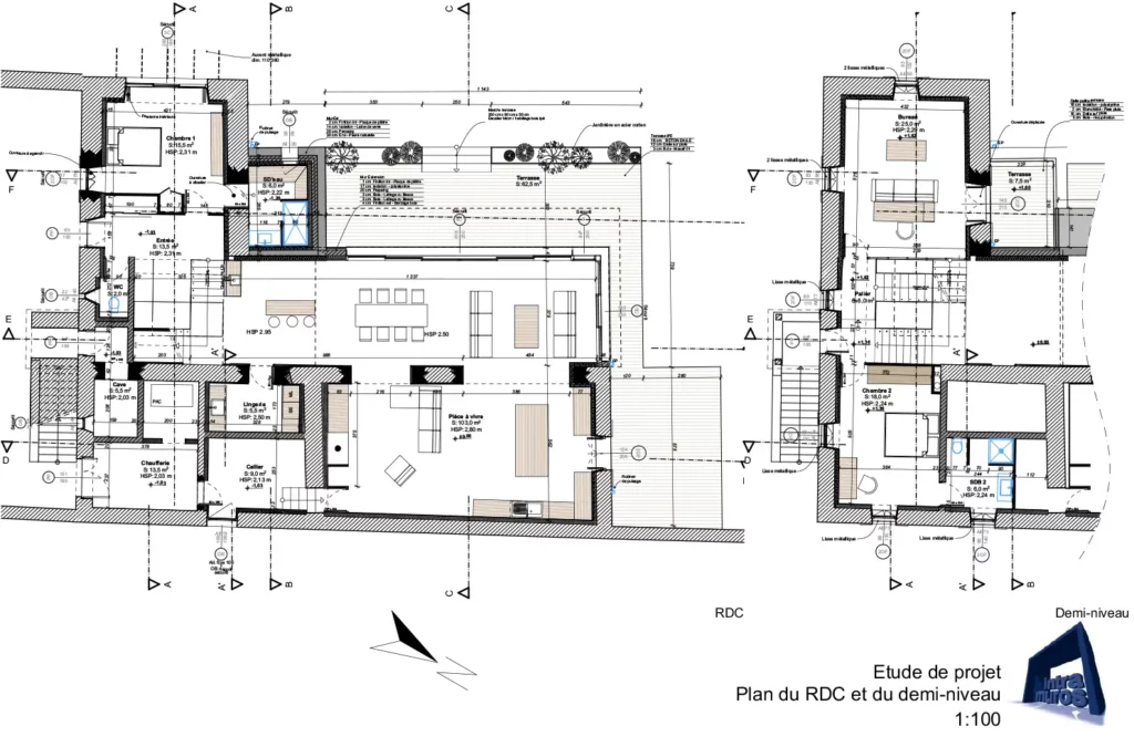
Cette habitation comporte 2 niveaux et 2 demi-niveaux.
L’extension au niveau du rez-de-chaussée de l’habitation permet d’agrandir la pièce à vivre. De plus, elle crée une terrasse au-dessus pour la suite parentale située à l’étage, ainsi qu’une autre vers le jardin. D’autre part, l’extension est entièrement vitrée afin d’ouvrir les espaces de vie vers l’extérieur. Les espaces de nuit se situent dans les étages.
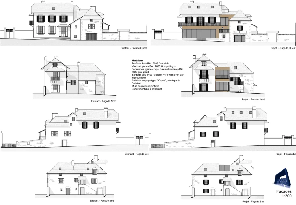
Cette maison est contiguë à notre projet précédent « La Grange du Monas ». Les deux projets vont ainsi créer un ensemble foncier, un domaine rural avec des points de vue imprenables sur Rodez et alentours. L’habitation principale sera celle-ci, en cours de rénovation, et la grange sera l’espace des annexes, avec notamment la piscine.












