
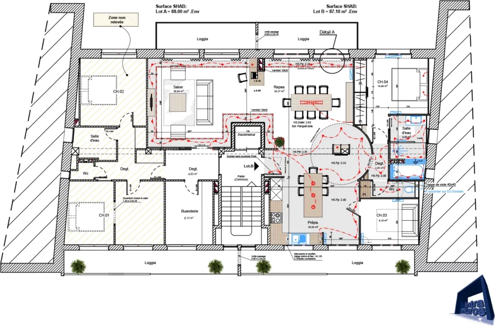
Réunion de deux appartements
Relier dans une copropriété deux appartements existants et traversants (Nord-Sud, sur un même pallier) en un seul appartement.
Rénovation
Réunion de deux appartements
Mission complète / Surface habitable : 175 m²
Le but était de créer une aile « parents » et une aile « enfants », avec l’espace à vivre au centre.
Concernant l’association des matériaux et des couleurs, nous avons par exemple fait le choix d’habiller la cage d’ascenseur avec un bardage bois pour générer un sentiment plus chaleureux de ce bloc imposant. Nous avons également voulu marquer l’entrée de l’espace nuit des parents avec une couleur forte créant un contraste, ainsi que des cloisons et un faux-plafond cintrés.
“Dans ce projet, il nous a fallu notamment nous adapter aux contraintes techniques et cahier des charges de la copropriété. Mais nous sommes parvenus à imaginer un espace répondant aux besoins, autant du côté technique qu’esthétique.”
Frédéric KierasinskiArchitecte d'intérieur - Créateur du projet
01. PHOTOS AVANT/APRÈS





